L’ospedale Santa Maria di Terni ha in sé un cuore pulsante: la sua Cappella, costruita negli anni ‘60 e consacrata il 30 ottobre 1967 per rispondere alle esigenze spirituali di conforto e di culto del personale, dei malati e di tutte le persone che per vari motivi si trovano in ospedale. Dopo cinquanta anni la cappella ha bisogno di restauro, messa a norma degli impianti, adeguamento alle norme antisismiche, rinnovamento delle suppellettili liturgiche e abbellimento. Per quest’opera progettata dall’architetto Maria Grazia Di Vito, concorreranno in maniera sinergica e generosa, ciascuno per la parte di competenza, la Direzione dell’Ospedale, la Diocesi di Terni Narni e Amelia anche coinvolgendo tutte le parrocchie, la Fondazione Carit e la generosità degli ospiti, dei malati e di chi ha a cuore l’ospedale. La nuova cappella arricchirà il patrimonio spirituale, artistico e umano del popolo ternano.
Il progetto è stato presentato dal mons. Giuseppe Piemontese vescovo di Terni-Narni-Amelia, da Maurizio Dal Maso, direttore generale dell’Azienda Ospedaliera di Terni, da padre Angelo Gatto cappellano dell’ospedale di Terni, da Maria Grazia Di Vito architetto e progettista dell’opera e con l’intervento del sindaco di Terni Leonardo Latini.
“La cappella è un po’ il cuore dell’ospedale – ha detto il vescovo Giuseppe Piemontese – una realtà che accoglie persone, soprattutto sofferenti, ma anche i familiari, tutti coloro che prestano cura e assistenza ai malati. Questo cuore che è la cappella dà ragione di vita di speranza di conforto di consolazione a chi ha fede, a chi cerca la guarigione e la serenità. La cappella è uno dei luoghi dove è presente la Chiesa Cattolica ed è sempre stato il punto di riferimento nei luoghi di lavoro, nei luoghi di incontro, nelle scuole ma soprattutto nell’ ospedale. Dov’è il desiderio e la speranza è tanto grande, dove l’abbandono e la fiducia al Signore aiuta a riprendere anche la salute la serenità e la vita”.
“Una riqualificazione è messa a norma dal punto di vista strutturale di competenza dell’azienda ospedaliera proprietaria dell’immobile – ha sottolineato Maurizio Dal Maso direttore dell’Azienda ospedaliera Santa Maria – con la messa a norma e sicurezza, riqualificazione. Successivamente una serie di opere di abbellimento e migliore funzionalità della Cappella dell’ospedale è il risultato finale da raggiungere si spera in tempi relativamente rapidi. Un intervento che intende dare maggiore attenzione a quello che ha rappresentato nella storia questo ospedale. Oggi è il progetto di massima, poi ci saranno i tavoli tecnici per quanto riguarda il progetto esecutivo, tipizzazione, costi e quant’altro. Ancora di sicuro non c’è un timing di intervento, dovendo avviare la piena strutturazione della progettazione esecutiva e della messa a gara”.
IL PROGETTO
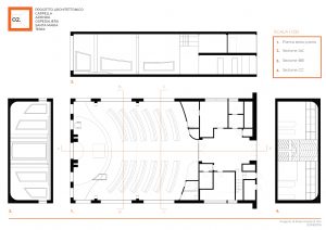
I punti di partenza da cui sono state tratte le linee guida sia teologiche che architettoniche del progetto è il tabernacolo: centro visivo e sostanziale della Chiesa cristiana. Il tabernacolo è composto da due braccia che rappresentano il Padre, il quale dona all’umanità il Figlio simboleggiato dal pane.
Quest’opera vuole mettere in evidenza la compassione di Dio per l’uomo nei suoi momenti difficili che possono essere quelli vissuti in ospedale.
Pertanto dal tabernacolo, si irradiano tutte le linee architettoniche e quelle che hanno dato vita agli arredi della Cappella. Nello specifico, dal presbiterio si irradiano le linee che hanno dato forma al progetto delle panche fino ad arrivare alla nuova disposizione del confessionale, del fonte battesimale ed anche delle stanze per la sacrestia.
L’idea progettuale ha l’intenzione di suggerire al fedele che entra nella chiesa un percorso vero e proprio in cui sia espresso simbolicamente il nucleo della fede cristiana. Le nuove vetrate rappresentano la stessa simbologia osservata da due punti di vista: uno suggerisce al fedele il cammino dell’uomo verso Dio indicato dalla forma crescente delle vetrate e dai colori. Il secondo, riprendendo la curvatura del presbiterio, assume una forma di corona, visibile dalla città, a significare che la Cappella Santa Maria è la corona dell’ospedale garante di salvezza: dono di Dio nel cuore del popolo ternano.
Le vetrate partono da una quota corrispondente al ventre di un uomo di media altezza per crescere gradualmente nell’avvicinarsi al presbiterio, producono conseguentemente una corrispondente crescita dell’intensità luminosa a simboleggiare una crescita spirituale; i colori vanno dal blu al rosso della terza vetrata che si raccorda al rosso del presbiterio in simbolo della sofferenza di Gesù che ha donato la sua vita per l’umanità.
















